로고

우리동네공사신고(우공신)
관리자 로그인 회원가입
  • 커뮤니티
  • 시공사례
  • 커뮤니티

    우공신에서 제공하는 다양한 혜택들 놓치지 마세요!

    시공사례

    행위허가 [행위허가 & 입주민동의서] 서울 강동구 신성둔촌미소지움 아파트

    페이지 정보

    profile_image
    작성자 최고관리자
    댓글 댓글 0건   조회Hit 1,944회   작성일Date 24-09-25 14:20

    본문

    b112b16c73ee9862a87d85f724479e10_1727241308_4018.png


    안녕하세요, 우리동네 공사신고 우공신 입니다.

    오늘은 서울 강동구의 신성둔촌미소지움 아파트에서 진행된

    행위 허가 서비스 사례를 소개해드리려고 합니다.

    최근 인테리어 공사를 계획하고 있는 많은 분들께서는 허가 절차에 대한 걱정을 많이 하시는데요,

    특히, 베란다 확장과 같은 대규모 공사에는 입주민들의 동의와 각종 행위 허가가 필수적입니다.

    오늘의 포스팅에서는 저희가 어떻게 그 과정을 매끄럽게 도와드렸는지 자세히 알려드리려 합니다.


    b112b16c73ee9862a87d85f724479e10_1727241350_2371.png
     

    서울 강동구 신성둔촌미소지움 아파트 행위허가 서비스 절차 살펴보기

    베란다 확장 공사를 준비하면서 가장 먼저 해야 할 일은 아파트 관리사무소를 방문하는 것입니다.

    행위허가 서비스 절차에 있어 이 과정은 매우 중요한 부분이랍니다!

    관리사무소에 가면 공사 신고를 위해 필요한 서류들을 받을 수 있는데,

    이 서류들은 정확하고 꼼꼼히 작성해야 합니다.

    서류를 받으면, 예치금, 공사 시 주의사항 등과 같은 중요한 정보들을 확인하는 과정이 필수적입니다.

    이러한 사항들은 나중에 발생할 수 있는 문제를 예방하는 데 큰 도움이 됩니다.

    모든 절차를 차근차근 진행하면, 베란다 확장 공사를 위한 준비가 완료됩니다.

    이렇게 철저한 준비 과정을 거치면 공사가 순조롭게 진행될 수 있으며,

    입주민들과의 마찰없이 순조롭게 인테리어 공사를 진행할 수 있습니다.

     

    b112b16c73ee9862a87d85f724479e10_1727241415_072.png


    서울 강동구 신성둔촌미소지움 아파트 행위허가 서비스 절차 살펴보기

    입주민동의서 과정

    공사 진행에 있어 이웃분들의 동의를 받는 과정은 매우 중요합니다.

    특히 베란다 확장과 같은 인테리어 공사를 진행하기 전, 이웃 주민들과의 원활한 소통이 필수적입니다.

    동의서에는 베란다 확장, 발코니 확장, 비내력벽 철거 등의 공사 내용을 빠짐없이 기재해야 합니다.

    각 세대의 호수, 이름, 서명은 물론, 공사 일정에 대한 정보도 포함되어야 합니다.

    이러한 세부사항들은 나중에 시군 구청의 허가 서류로 인정받기 위해 필수적입니다.

    이렇게 체계적으로 진행된 우공신의 입주민 동의서 수집 과정은 행위 허가 절차의 핵심 단계 중 하나로,

    모든 인테리어 공사가 순조롭게 이루어질 수 있도록 기여합니다.

    6990f20cbe48338a2e74764b5cd28276_1727244179_9048.png

    아파트 게시판 및 부재중 세대 안내문 부착

    모든 입주민이 공사 내용을 정확히 알고 이해할 수 있도록 아파트 게시판에 안내문을 부착했습니다.

    안내문은 공사의 구체적인 내용과 일정을 명시하여, 주민들이 언제 어떤 작업이 진행되는지 쉽게 확인할 수 있게 하였습니다.

    이렇게 함으로써, 이웃분들이 공사로 인한 불편함을 최소화할 수 있도록 배려했습니다.

    특히 부재중이거나 직접 대면하여 동의를 구하기 어려운 세대에 대해서는,

    공사 내용을 꼼꼼히 기재한 안내문을 부착하여 소통의 빈틈을 줄였습니다.

    이렇게 체계적인 소통이 이루어지면, 공사가 시작되더라도

    이웃분들께서 불편함을 느끼지 않도록 원활한 환경을 조성할 수 있습니다.

    6990f20cbe48338a2e74764b5cd28276_1727244232_6185.png

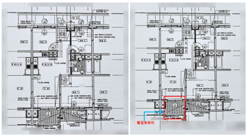
    서울 강동구 신성둔촌미소지움 아파트 행위허가 서비스 절차 살펴보기

    행위허가

    이제 변경 전과 후의 도면이 모두 잘 준비되었는지,

    공사 내용과 치수가 정확히 기재되어 있는지 꼼꼼히 점검해야 합니다.

    내부 인테리어 중 베란다 확장 공사를 시작하려면, 가장 먼저 아파트 도면이 필수적입니다.

    이 도면은 단위세대 평면도를 기준으로 작성되기 때문에,

    공사 전에 반드시 아파트 관리사무소에 요청해 미리 챙기는 것이 중요합니다.

    도면을 받을 때는 상하좌우 모든 방향의 치수가 잘 보이도록 사진을 찍어야만 유용하게 활용할 수 있습니다.

    공사 전과 후의 도면 모두 준비하는 것이 필수적이니, 이 점을 꼭 체크해 주어야 합니다!

    이렇게 인테리어 동의서와 아파트 도면 등 필요한 서류들이 모두 준비되면, 이제 관할 구청에 공사 신고를 진행합니다.

    신고는 오프라인과 온라인 모두 가능하며, 오프라인으로는 구청에 직접 방문하여 진행할 수 있습니다.

    온라인에서는 ‘세움터’라는 국토부 민원 사이트를 통해 간편하게 신고할 수 있는 방법도 마련되어 있습니다.


    우공신 서울 강동구 신성둔촌미소지움 아파트 행위허가 서비스 사례 포스팅을 마치며

    새 집으로의 설레는 이사 및 인테리어 공사 등과 함께 이웃들과의 인상은 정말 중요합니다.​

    그래서 우공신은 공동주택 이사 및 인테리어 공사 전 대행서비스를 제공하고 있습니다.

    우공신은 입주민 동의서 작성, 승강기 보양, 행위허가 대행 등 다양한 서비스를 제공합니다.

    이 모든 과정에서 우공신은 항상 친절하고 신속한 서비스를 제공하며, 이웃들을 대하는 마음으로 일합니다.​

    우공신은 올바른 인테리어 리모델링 문화를 만들어가기 위해 노력하고 있습니다.

    우리 모두가 행복하고 안락한 공동주택에서 살기 위해, 늘 최선을 다하고 있습니다.

    저희 우공신의 도움이 필요하실 때 언제든지 연락주시면 친절과 정직함을 기본으로 성심성의껏 상담 도와 드리겠습니다.

    댓글목록

    등록된 댓글이 없습니다.

    HOME
    카톡상담
    서비스신청
    우공신블로그